売買 売家 - 尾張旭市新居町今池下 既存戸建
オススメ駐車場有
- 販売価格
- 3,799万円
- 間取り・築年数
-
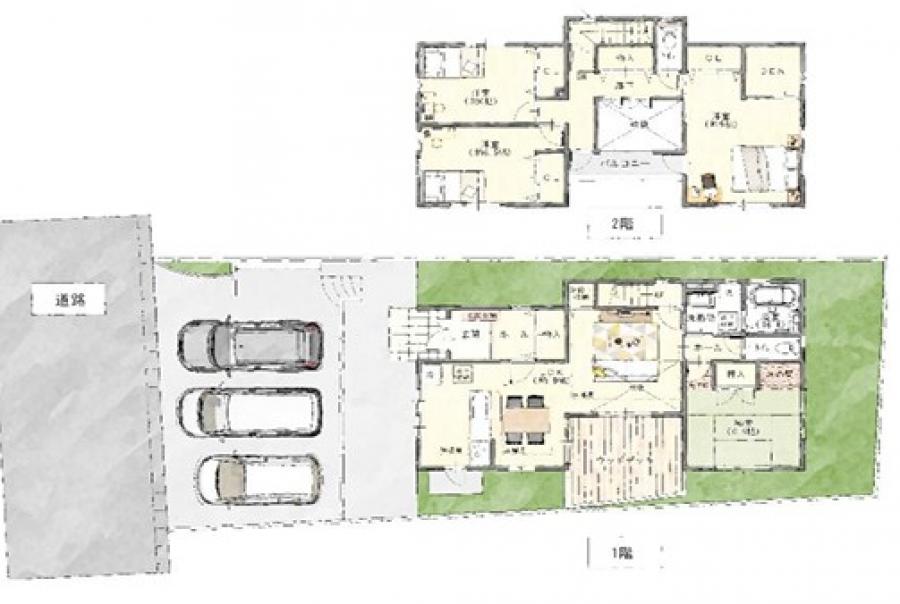
4LDK
2008年6月 (築18年)
- その他諸経費
- 住所・交通・学区
-
尾張旭市エリア
愛知県 尾張旭市新居町今池下
学区:・
名鉄瀬戸線 尾張旭駅 徒歩16分
物件ID:2367
上水道
下水道
電気
ガス(都市)
- 地目
- 宅地
- 都市計画
- 市街化区域
- 取引態様
- 媒介
- 現況
- 空家
- 用途地域
- 1種低層
- 構造材質
- 木造
- 引き渡し
- 相談
- 土地権利
- 所有権
- 土地面積
- 194.63m² (58.88坪)
- 建物面積
- 119.24m² (36.07坪)
- 建ぺい率
- 60%
- 容積率
- 200%
- 建物の向き
- 南
- 接道状況
- 西側 公道
- 道路幅員
- 西側 12m
室内リフォーム済み 4LDKの既存戸建
子育て世代も、シニア世代にも生活環境が良いエリアです。バロー城山店、サンドラッグバロー城山店 徒歩10分!バロー城山店の2階には ジムがあり、体を動かしてリフレッシュ出来ます。
◆不動産のことなら安心と信頼のトリトン住宅販売にお任せくださいませ!
◆不動産のことなら安心と信頼のトリトン住宅販売にお任せくださいませ!





